こんにちは。設計の鳴瀬です。
濱﨑邸のプレゼンテーションについてお話したいと思います。
前回のブログは(2現地調査)こちら
→https://www.fukuda-lld.jp/blog/?p=39377
濱﨑邸のプレゼンテーションは、コロナ禍の時期であったためオンラインで行いました。

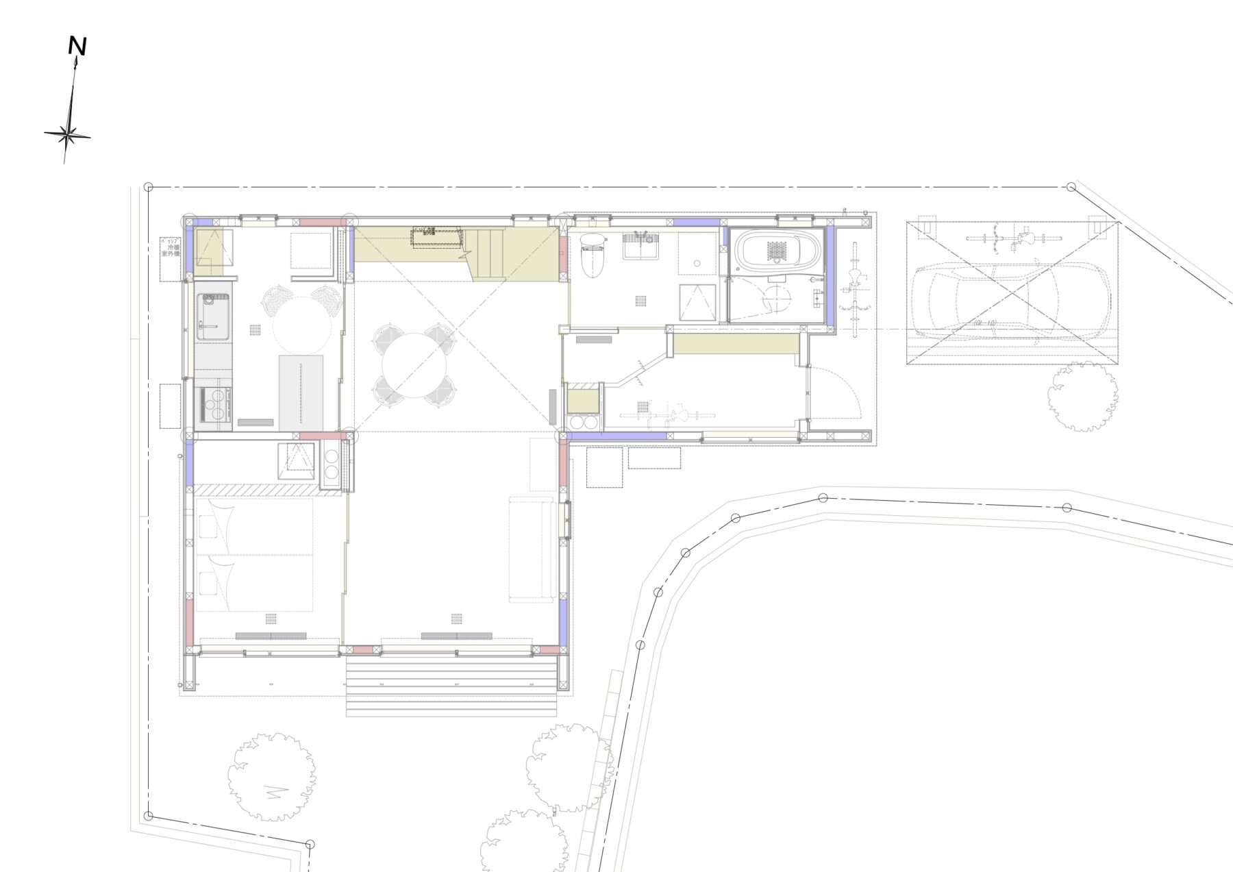
建物を 4 つの構造ユニットに分け、極限にシンプルな間取りとしています。


1階は LDK、主寝室、水廻りを配置。
2階には将来子供部屋となるフリースペースと吹抜けがあります。


↑こちらの最終プランとプレゼンテーションプランがほぼ同じですね。
プレゼンテーションのプランで、濱﨑さんのご要望通りのプランとなっていてよかったです。

東側のメインファサード。
後の打合せでカーポートの位置は南北反転しますが、その経緯も今度書きたいと思います。
冬と夏、それぞれの日照シミュレーションです。
(明るくなっている部分が熱の入る場所です。決して暗いという訳ではないのでご安心ください。)
うだつ(袖壁)と屋根の軒出しの効果もあり、夏の日射遮蔽もしっかり出来ています。
濱﨑さんご家族からヒアリングした結果、求めているお家は シンプル・可変性・省エネ がキーワードでした。
構造・プラン・収納計画、どれも明快で
シンプルだからこそ生まれる生活のしやすさ・豊かさ・美しさを追求したお家です。
【個別相談会(オンラインも可能)】
家づくりに悩んだら、フクダ・ロングライフデザインにご相談ください!
性能やデザインのことはもちろん、資金計画や土地探しまで、
家づくりに必要なすべてのステップをサポートします。
(土地探しや物件探しのお手伝いもしております)
詳しくはこちらから→個別相談会
【開催予定イベント・セミナー】
私たちと一緒に家のことを学びませんか?
これから家づくりをはじめる方おすすめの「家づくりアカデミー」や、
「家の裏側がみることができる構造見学会」「完成見学会」「お住い拝見見学会」
など様々なイベントを企画しております。ぜひご参加ください。
詳しくはこちらから→開催予定イベント・セミナー
【資料請求・お問い合わせ】
コンセプトブックや各種パンフレットお送りします。
ご意見やご質問などお気軽におよせください。
詳しくはこちらから→資料請求・お問い合わせ
耐震構法SE構法と無垢無添加による
「パッシブデザイン&リアルZEH」の家づくりを提供する設計工務店です。
新築の注文住宅や既存戸建て住宅の「性能向上リフォーム」、
中古マンションの「木のマンションリノベーション」にも取り組んでいます。
さらに、専属スタッフにより「土地探し・物件探し」もサポート致します。
大阪・神戸・奈良で、土地探し・物件探し、新築注文住宅、
リフォーム・リノベーションをお考えの方はお気軽にお問い合わせ下さい。
フクダ・ロングライフデザイン株式会社
〒553-0003 大阪市福島区福島8丁目17番14号
フリーダイヤル:0120-965-830
https://www.fukuda-lld.jp/














